Мы используем куки-файлы. Соглашение об использовании
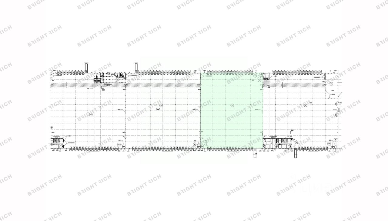
Площадь9 537 м²
Этаж1 из 1
Выс. потолков12.0 м.
Отчёт о привлекательности объектаУзнайте, насколько помещение и район подходят для вашего бизнеса
Что входит в отчёт
  • Охват населения
  • Пешеходный трафик
  • Автомобильный трафик
  • Средний бюджет семьи по району
  • Арендные ставки рядом
  • Точки притяжения
  • Конкуренты в радиусе 1 км
  • Рекомендации по выбору места для бизнеса
NK Парк Пушкино 2, Корпус Беллиген Расположение в северо-восточном направлении, выезд на Ярославское шоссе, расстояние до кольцевой — 20 км. Блок введен в эксплуатацию. ТЕХ.ПАРАМЕТРЫ: • нагрузка на пол: 6 тонн/м²; • уровень пола: 1,2 м; • тип пола: бетонный с антипылевым покрытием; • шаг колонн: 12х24; • высота потолков: 12 м; • система пожаротушения: спринклерная; • пожарная сигнализация: есть. ПРЕИМУЩЕСТВА: • готовые инженерные коммуникации и инфраструктура; • удобная локация: 20 км до МКАД, 0 км до Ярославского шоссе (М-8); • экономично. Снижение эксплуатационных расходов за счет энергоэффективности зданий; • соответствие международным стандартам пожарной безопасности; • обширная парковка с возможностью маневрирования грузового транспорта. ФИН.УСЛОВИЯ: • в арендную ставку включены НДС и ОРЕХ; • арендная ставка 13 359 ₽/м²/год; • прямой договор аренды с собственником без комиссии для клиента. Готовы оперативно организовать просмотр в удобное время и предоставить PDF-презентацию.
lock

Войдите или зарегистрируйтесь
для просмотра информации

Просматривайте условия сделки и всю информацию об объекте
Сохраняйте фильтры в поиске и не вводите заново
Доступ к избранному с любого устройства
Неограниченное добавление в избранное
Позвоните автору
Вам ответят на все вопросы
Остались вопросы по объявлению?
Позвоните владельцу объявления и уточните необходимую информацию.
  • Инфраструктура
  • Похожие рядом
  • Тип зданияСкладской комплекс
  • Общая площадь455 000 м²
Естественная вентиляция
Спринклерная система пожаротушения
Помощь надёжных риелторов
Риелтор партнёр Циан поможет купить или продать любую недвижимость
10 132 268 ₽/мес.

Прямая аренда (от года), предоплата за 1 месяц

142 289 $/мес.
122 749 /мес.
Цена за метр
12 750 ₽ в год
Налог
НДС включен: 1 827 130 ₽
Комиссия
нет
Коммунальные платежи
не включены
Эксплуатационные расходы
включены
Агентство недвижимости
На Циан
12 лет
Объектов в работе
более 1000