Мы используем куки-файлы. Соглашение об использовании
Общая площадь315,5 м²
Участок8,25 сот.
Этажей в доме3
Год постройки1999
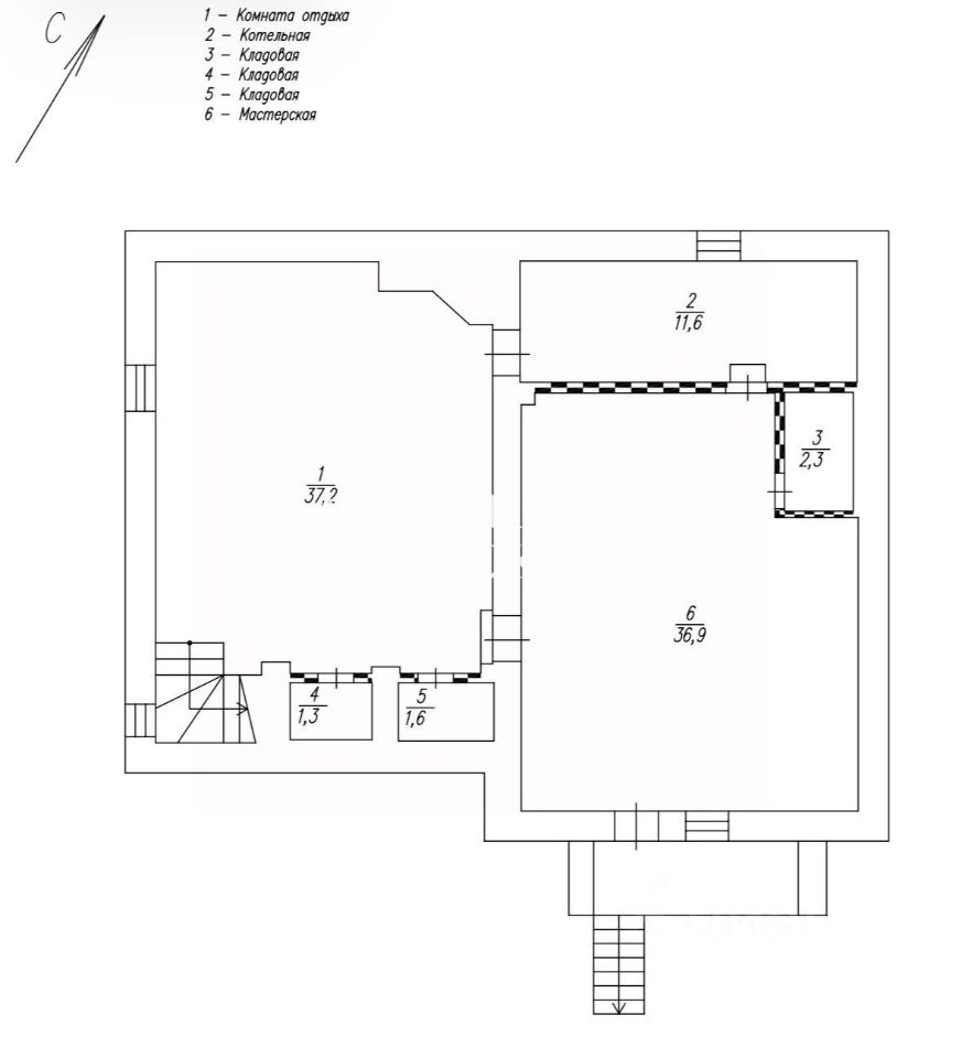
Добрый день! Продаем ОЧЕНЬ УЮТНЫЙ КИРПИЧНЫЙ ТРЕХ этажный дом 315.5 м² в МО г. Пушкино, предназначенный для круглогодичного проживания. Описание и фото соответствуют действительности. ПРО ДОКУМЕНТЫ: Без обременений Прямая продажа Дом и участок зарегистрированы, готовы сразу выйти на сделку Один взрослый собственник Подходит под ИПОТЕКУ, при необходимости БЕСПЛАТНО поможем Вам с одобрением. ПРО ДОМ: Фундамент ленточный высотой 3 м. Стены кирпичные толщ 55 см. Перекрытия железобетонные Кровля из металлочерепицы На первом этаже гардеробная, просторная гостиная, большая кухня, спальня со своим санузлом, отдельный гостевой санузел, из дома также есть отдельный выход на веранду. В доме имеются два очень красивых и полностью рабочих камина (в подвале и на 1 этаже). На втором этаже 4 комнаты (3 спальни и 1 кабинет) и просторная ванная комната. На цокольном этаже находятся: большая комната отдыха -игровая (где помещается стол для настольного тенниса или бильярдный стол, большой камин); просторная комната- мастерская с отдельным выходом во двор, которая может использоваться как комната для проживания обслуживающего персонала со спальным местом, кухней и своим санузлом; котельная постирочная. В дом заведено электричество, водоснабжение централизованное, канализация городская. Отопление газовый котел. Дом отделан дорогими материалами, а именно: французские деревянные двери, дубовые лестницы, итальянская плитка и т д. ПРО УЧАСТОК: На участке тропинки обсыпаны щебнем, что предотвращает появлению грязи в дождливую погоду. Ландшафтный дизайн: посажена ель возрастом более 15 лет, яблони, туи, виноградное дерево. Мангальная зона с мойкой. Участок со стороны фасада огорожен забором из лиственницы. Во дворе можно припарковать два автомобиля. Гараж для машины, хозтоваров и инвентаря с отдельным въездом с улицы - 23 м2. На заднем дворе за домом находиться Баня (настоящая русская), с кухонной зоной, комнатой отдыха и внутренней верандой - 54 м2 ИНФРАСТРУКТУРА: Мамонтовка — микрорайон (c 2003 года) города Пушкино Московской области. Расположен неподалёку от платформы "Мамонтовская" Ярославского направления. В 24 км от МКАД по Ярославскому шоссе. С запада Мамонтовка граничит с Учинским лесопарком и Учинским водохранилищем. В микрорайоне в пешей доступности имеется вся необходимая инфраструктура: магазины, почта, поликлиника, библиотека, детские сады, школы, Пушкинская частная школа, московская школа, пункты выдачи различных маркетплейсов и т д. Звоните, ответим на любой вопрос и запишем на показ! С уважением, Тигран
Позвоните автору
Вам ответят на все вопросы

О доме

Площадь

315,5 м²

Количество этажей

3

Год постройки

1999

Об участке

Площадь

8,25 сот.

Категория земель

Земли населённых пунктов

Коммуникации и удобства

Санузел

В доме

Канализация

Есть

Водоснабжение

Центральное

Электричество

Есть

Газ

Есть

Дополнительно

Гараж Баня

Спросите умного помощника
Получите экспертное мнение о жилье

Расположение

Подпишитесь на объявления в этой локации
Мы сообщим, как только поблизости появится что‑нибудь новенькое
Ипотечный калькулятор
  • Базовая
  • Семейная
  • ИТ-ипотека
  • 20%
  • 30%
  • 40%
  • 50%
лет
  • 10 лет
  • 20 лет
  • 30 лет
Загружаем предложения от застройщика и банков
Хотите продать недвижимость?Разместите объявление на ЦианРазместить
37 990 000 ₽
Эксперт от ЦианаПомощь с поиском и сделкой
Цена за метр
120 412 ₽/м²
Ипотека
возможна
Агентство недвижимости
Документы проверены